Pool & Garden design
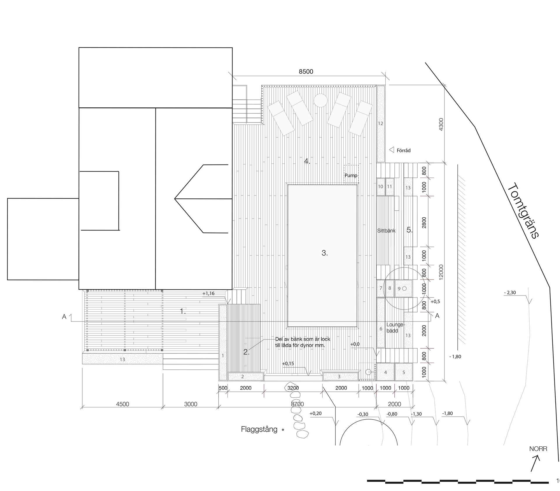
In this landscaping project, we designed a refreshed pool area with an updated deck, built-in deck and an outdoor shower. The pool area was also connected to the lower part of the garden by a large staircase. The staircase incorporated sun terraces, seating and planting to make the area more soft and vivide. Project was a cooperation with Delin Arkitektkontor and was compleeted in 2022. Pictures are coming.